13 Sant Ct, Ravenhall

Contact Agent

Now Selling

Position Your Business for Success

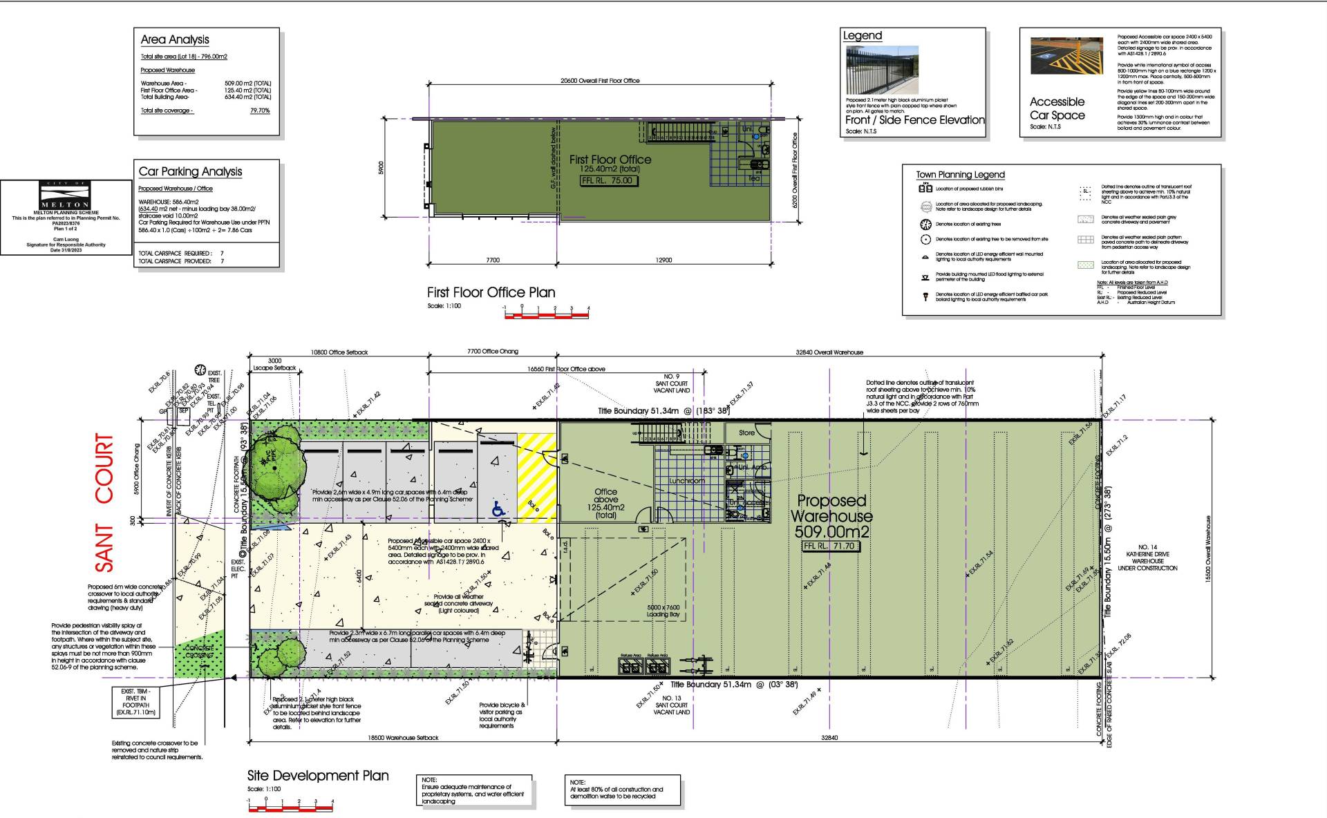
Soon to be completed a facility sits proudly on a 634sqm* site in the booming Ravenhall precinct. With exceptional access to the Western Freeway and surrounding arterials, this property is designed for businesses seeking space, functionality, and visibility.

Property Overview:

  • Warehouse: 509sqm*
  • Office: 125sqm*
  • Total Site Area: 634sqm*
  • Zoning: Industrial 3 (IN3Z)

Key Features:

  • Full-height clear span warehouse with 7.6m springing height
  • Secure, gated access and container-height roller door
  • Executive dual-level office with feature staircase
  • Modern amenities including kitchen, shower, and accessible bathroom
  • Landscaped surrounds and professional façade

This is an outstanding opportunity to secure a high-calibre premises in one of Melbourne’s most sought-after industrial corridors. Suit owner-occupiers or investors looking to capitalise on strong rental demand.

For more information and to arrange a private inspection please contact Ali Khatib 0400 668 431

 

Details

Address 13 Sant Ct, Ravenhall
Price Contact Agent
Property Type Commercial
Property ID 263
Category Industrial/Warehouse, Showrooms/Bulky Goods, Retail
Office Area 125m2
Warehouse Area 509m2

Tools

Share This Property